Мотор-барабан МБ 1,6
Идеальное решение для небольших ленточных конвейеров
-
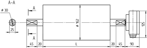
"Уралредуктор" изготавливает и поставляет мотор-барабаны МБ 1,6 со следующими параметрами:
- Диаметр барабана: 162 мм;
- Длина барабана: 350 - 600 мм;
- Номинальная мощность электродвигателя: 0,37 - 0,75 кВт;
- Линейная скорость ленты: 0,25 - 0,63 м/с;
- Частота вращения: 31,5 - 80,0 об/мин;
- Тяговое усилие: 873 - 2200 Н;
- Номинальный крутящий момент: 62 - 158 Н*м.
Выгодные отличия мотор-барабанов от других технических решений привода ленточного конвейера заключаются в следующем:
– простота монтажа (не требуют дополнительных передач, изготовления валов и подшипниковых узлов);
– высокий КПД (более 90%);
– низкое энергопотребление;
– влаго- и пылезащищенность;
– продолжительный срок службы.Мотор-барабаны активно используются в машиностроении, автомобилестроении и приборостроении, на щебёночных заводах и карьерах, в горной добыче и на каменоломнях, на электростанциях, в сельском хозяйстве, при производстве цемента, удобрений и сыпучих смесей, в дорожном строительстве, в морских и речных портах, специализирующихся на перевалке сыпучих грузов, в транспортёрах различного назначения.
Вы можете заказать мотор-барабан гуммированный резиной. Это позволит:
– увеличить коэффициент сцепления между барабаном и лентой;
– уменьшить натяжение ленты и ее износ;
– минимизировать проскальзывание барабана и связанный с этим пережег ленты;
– снизить уровень шума при работе конвейера;
– упростить регулировку прямолинейного хода ленты.На мотор-барабан МБ 1,6 действует гарантия 12 месяцев с момента ввода в эксплуатацию или 18 месяцев с момента поставки оборудования.
Для подбора мотор-барабана по требуемым параметрам свяжитесь с нами через форму обратной связи. Ваш запрос будет обработан в кратчайшие сроки!
-
- Фактическая скорость ленты может отличаться от номинальной не более, чем на 10%.
- Климатическое исполнение и категория размещения У2 по ГОСТ 15150-69.
- Барабаны приводные имеют степень защиты, соответствующую IP-54 по ГОСТ 17494-72.
- Возможна поставка оборудования с техническими характеристиками, отличными от нижеуказанных.
Электродвигатель (обозначение, номинальная мощность, номинальный ток)
Линейная скорость ленты, V, м/с
Частота вращения барабана, n, об/мин
Номинальный крутящий момент, M, Н∙м
Тяговое усилие, F, Н
Масса, m, кг при длине барабана L, мм*
На 50 мм длины до 1400 мм
500
550
600
650
700
750
АИРВ80А6
(АТКВ80А6),
0,75 кВт,
2,4 А0,50
45,0
155
1500
70
73
76
79
82
85
3 кг
0,56
50,0
139
1339
0,63
56,0
124
1190
0,71
63,0
110
1056
АИРВ71В4
(АТКВ71А4),
0,75 кВт,
1,9 А0,80
71,0
98
938
69
72
75
78
81
84
3 кг
АИРВ80В6
(АТКВ80В6),
1,10 кВт,
2,9 А0,50
45,0
227
2200
74
77
80
83
86
89
3 кг
0,56
50,0
204
1964
0,63
56,0
182
1746
0,71
63,0
162
1549
АИРВ80А4
(АТКВ80А4),
1,10 кВт,
2,9 А0,80
71,0
144
1375
71
74
77
80
83
86
3 кг
0,90
80,0
128
1222
1,00
90,0
113
1100
1,12
100,0
102
982
АИРВ90А6,
1,50 кВт,
4,2 А0,50
45,0
309
3000
75
78
81
84
87
90
3 кг
0,56
50,0
278
2679
0,63
56,0
248
2380
0,71
63,0
221
2113
АИРВ80В4,
1,50 кВт,
3,8 А0,80
71,0
196
1875
71
74
77
80
83
86
3 кг
0,90
80,0
174
1667
1,00
90,0
155
1500
1,12
100,0
139
1339
1,25
112,0
124
1200
1,40
125,0
111
1071
1,60
140,0
100
938
1,80
160,0
87
833
2,00
180,
77
750
2,24
200,0
69
670
АИРВ90А4,
2,20 кВт,
5,0 А0,80
71,0
287
2750
72
75
78
81
84
87
3 кг
Габаритные и присоединительные размеры









