Мотор-барабан МБ 3,25
Идеальное решение для промышленных конвейеров
-
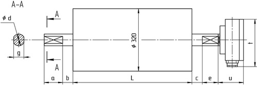
"Уралредуктор" изготавливает и поставляет мотор-барабаны МБ 3,25 со следующими параметрами:
- Диаметр барабана: 320 мм;
- Длина барабана: 380 - 425 мм;
- Номинальная мощность электродвигателя: 0,55 - 4,0 кВт;
- Линейная скорость ленты: 1,0 м/с;
- Частота вращения: 56 об/мин;
- Тяговое усилие: 550 - 4000 Н;
- Номинальный крутящий момент: 84 - 570 Н*м.
Выгодные отличия мотор-барабанов от других технических решений привода ленточного конвейера заключаются в следующем:
– простота монтажа (не требуют дополнительных передач, изготовления валов и подшипниковых узлов);
– высокий КПД (более 90%);
– низкое энергопотребление;
– влаго- и пылезащищенность;
– продолжительный срок службы.Мотор-барабаны активно используются в машиностроении, автомобилестроении и приборостроении, на щебёночных заводах и карьерах, в горной добыче и на каменоломнях, на электростанциях, в сельском хозяйстве, при производстве цемента, удобрений и сыпучих смесей, в дорожном строительстве, в морских и речных портах, специализирующихся на перевалке сыпучих грузов, в транспортёрах различного назначения.
Вы можете заказать мотор-барабан гуммированный резиной. Это позволит:
– увеличить коэффициент сцепления между барабаном и лентой;
– уменьшить натяжение ленты и ее износ;
– минимизировать проскальзывание барабана и связанный с этим пережег ленты;
– снизить уровень шума при работе конвейера;
– упростить регулировку прямолинейного хода ленты.На мотор-барабан МБ 3,25 действует гарантия 12 месяцев с момента ввода в эксплуатацию или 18 месяцев с момента поставки оборудования.
Для подбора мотор-барабана по требуемым параметрам свяжитесь с нами через форму обратной связи. Ваш запрос будет обработан в кратчайшие сроки!
-
- Фактическая скорость ленты может отличаться от номинальной не более, чем на 10%.
- Климатическое исполнение и категория размещения У2 по ГОСТ 15150-69.
- Барабаны приводные имеют степень защиты, соответствующую IP-54 по ГОСТ 17494-72.
- Возможна поставка оборудования с техническими характеристиками, отличными от нижеуказанных.
Электродвигатель (обозначение, номинальная мощность, номинальный ток)
Линейная скорость ленты, m, м/с
Частота вращения барабана, n, об/мин
Номинальный крутящий момент, M, Н•м
Тяговое усилие, F, Н
Масса, m, кг при длине барабана L, мм*
380
425
АИРВ71А4,
0,55 кВт,
1,6 А1,0
56,0
84
550
82,6
-
АТКВ100В4,
4,0 кВт,
8,5 А1,0
56,0
570
4000
-
106,8
Габаритные и присоединительные размеры









