Мотор-барабан МБ 5ПF
Идеальное решение для тяжелонагруженных промышленных конвейеров
-
Привод пластинчатого конвейера
На крупных производствах, а также других промышленных сферах, пластинчатый конвейер является важным устройством, помогающим выполнять довольно тяжелую работу – передвигать грузы на маленькие и большие расстояния. С помощью хорошо продуманной конструкции конвейера, его применение широко востребовано и сегодня такое оборудование можно встретить везде, где:
- Требуется перемещение материала в виде кусков, при этом совершенно неважно их происхождение.
- Необходима транспортировка тяжелого штучного груза.
- Производится обработка материала во время его движения по ленте. Данная функция сделала пластинчатые конвейеры очень востребованными в самых различных промышленных сферах.
- Требуется транспортировка сыпучих материалов, причем на таком типе конвейера это можно делать и в горизонтальном, и в наклонном направлении.
- Есть необходимость работы в самых разных сложных условиях, в том числе в химической промышленности, горнодобывающей, энергетической и так далее.
Для того, чтобы привести в действие пластинчатый конвейер, необходимо установить специальный привод, который представляет собой мотор-барабан.
Приводной барабан по ГОСТу
Устройство привода конвейера состоит из барабана со спрятанным внутри приводным механизмом, что соответствует ГОСТам и требования по технике безопасности. Компания УРАЛРЕДУКТОР предлагает к приобретению мотор-барабаны для тяжело нагруженных промышленных конвейеров. Устройство быстро и легко устанавливает в обозначенное место и подключается к электропитанию. Барабан можно регулировать и достигать тех результатов, которые вам требуются.
Мы изготавливаем мотор-барабаны для любых конвейерных установок. Все материалы, используемые при производстве, соответствуют требованиям и служат долго. Благодаря многолетнему опыту, мы научились делать действительно качественные мотор-барабаны разного диаметра, поэтому даем гарантию на всю свою продукцию на срок от 12 до 18 месяцев.
Помимо гладкого мотор-барабана мы также изготавливаем по заказу приводы, гуммированные резиной для лучшего сцепления, повышения эффективности и продления срока службы ленточного конвейера.
Чтобы купить привод для подвесного конвейера, нужно просто оставить свои контактные данные в форме ниже. Наш менеджер свяжется с вами в самое ближайшее время и расскажет об условиях сотрудничества и сроках поставки продукции на ваше производство. Всегда для вас гибкая система скидок и лучшие цены на футерованный приводной барабан и другую продукцию УРАРЕДУКТОР.
-
- Фактическая скорость ленты может отличаться от номинальной не более, чем на 10%.
- Климатическое исполнение и категория размещения У2 по ГОСТ 15150-69.
- Барабаны приводные имеют степень защиты, соответствующую IP-54 по ГОСТ 17494-72.
- Возможна поставка оборудования с техническими характеристиками, отличными от нижеуказанных.
Электродвигатель(обозначение, номинальная мощность, номинальный ток)
Линейная скорость ленты V, м/с
Частота вращения барабана n,об/мин
Номинальный крутящий момент M, Н∙м
Тяговое усилие F, Н
Масса m, кг при длине барабана L, мм*
На 50 мм длины до 1600 мм
900
950
1000
1050
1100
132S6F
5,5 кВт
12,0 А1,25
45,0
1040
4400
440
456
468
480
492
12 кг
1,60
56,0
815
3438
439
455
467
479
491
12 кг
132М6F
7,5 кВт
11,0 А1,25
45,0
1420
6000
452
464
476
488
500
12 кг
1,60
56,0
1110
4688
447
463
476
487
500
12 кг
160S6F
11,0 кВт
23,0 А1,25
45,0
2083
8800
496
508
520
532
544
12 кг
1,60
56,0
1627
6875
495
507
519
531
543
160М6F
15,0 кВт
32,0 А1,25
45,0
2840
12000
557
569
581
592
604
12 кг
1,60
56,0
2219
9375
556
568
580
591
603
180М6F
18,5 кВт
37,0 А1,60
56,0
2737
11563
568
580
592
604
616
12 кг
112М4F
5,5 кВт
12,0 А2,00
71,0
651
2750
430
442
454
466
478
12 кг
2,50
90,0
521
2200
428
440
452
463
476
132S4F
7,5 кВт
16,0 А2,00
71,0
888
3750
435
450
463
475
487
12 кг
2,50
90,0
710
3000
433
449
461
472
485
132М4F
11,0 кВт
22,0 А2,00
71,0
1302
5500
444
460
472
484
496
12 кг
2,50
90,0
1041
4400
442
458
470
481
493
160S4F
15,0 кВт
30,0 А2,00
71,0
1775
7500
492
504
516
528
540
12 кг
2,50
90,0
1420
6000
490
502
514
525
537
3,00
112,0
1127
4762
490
503
515
526
538
160М4F
18,5 кВт
35,0 А2,00
71,0
2189
9250
556
568
580
592
604
12 кг
2,50
90,0
1752
7400
554
566
578
589
601
3,00
112,0
1390
5873
554
567
579
590
602
180S4F
22,0 кВт
44,0 А2,00
71,0
2406
11000
560
573
585
597
609
12 кг
2,50
90,0
2083
8800
559
570
583
594
606
3,00
112,0
1653
6984
559
571
583
595
607
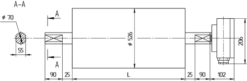
Габаритные и присоединительные размеры








